Niksic, Ozrinici – Building Plot with Legal Construction Potential
About the property
An excellent building plot is available for sale in the Ozrinici area of Niksic, offering clear legal conditions for residential development. The site allows construction of multiple units with up to three levels and a total built-up area of up to 600 m², with a minimum of 70 m² per house. Construction can be carried out based on the buyer’s own design or with support from the seller’s construction company.
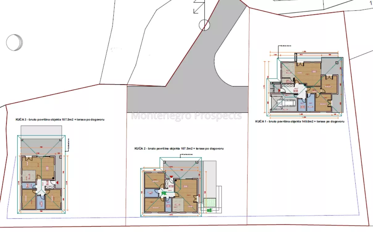
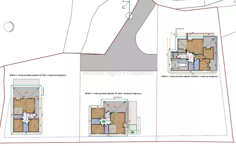
Urban-technical conditions have been issued, and a complete architectural project for the houses and surrounding area has already been prepared. The project can be adjusted upon request, including changes to surface areas and other details. According to the current plan, each of the three plots provides for the construction of a single-storey house of 151 m² with terraces, along with an auxiliary building—a summer kitchen with barbecue area—of 38 m². The total built area per plot amounts to 194 m², intended for one household.
The turnkey option includes the purchase of the plot, design and planning, utility connections, landscaping, taxes, and the building permit. The final price depends on the required plot size. The indicative built area consists of a 151 m² house plus a 38 m² summer kitchen, for a total of 189 m².
The land is fully fenced and accessible via an asphalt road. Public street lighting is installed along the entire street. High-speed internet is available, along with full municipal infrastructure. Water supply is secured from two sources: city water and industrial water from a nearby lake, supplied by gravity, free of charge and without usage limits.
Price for the purchase of a plot with a total area of 4,786 m²: 65,000 €.
Purchase of the plot with construction included is available by agreement, starting from 170,000 €.
All information provided is considered accurate and reliable, as supplied by the seller and verified sources. However, the buyer remains responsible for conducting due diligence, and professional legal assistance is recommended.
