About the property
Building plot with project, Morinj
Basic Info:
- Location: Morinj
- Plot Size: 1465 sq m
The plot is planned for two residential buildings and is located 300m from the sea. Building permit has been obtained. One-third of the communal fees are paid. Water and electricity connections are nearby.
Main characteristics:
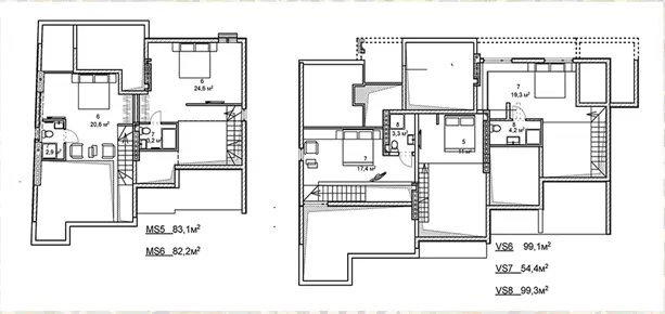
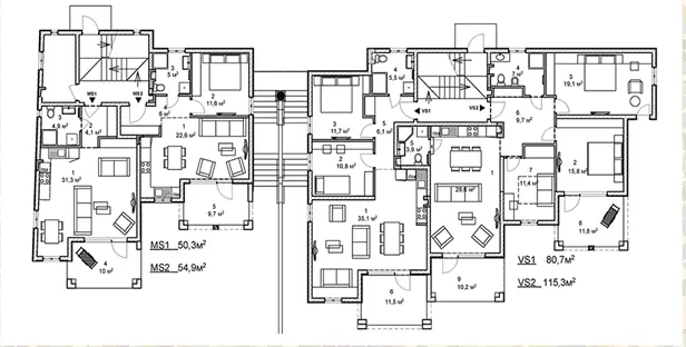
- Building 1: Gross area 734 sq m, consists of 8 residential units, max number of floors is P+1+Pk
- Building 2: Gross area 441 sq m, consists of 6 residential units, max number of floors is P+1+Pk
Region
